

Structure et réseaux

Surface capable
![]()
Plafond et plancher technique
![]()
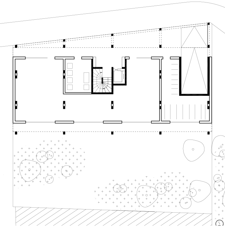
Rez-de-chaussée
![]()
Sous-sol
![]()
T4 | T4
![]()
T1 atelier | T1 | T3 collocation
![]()
T2 | T2 | Bureau + T3
![]()
T3 | T5![]()
Programme : Création de logements Accessibles et Adaptés de manière Accélérée
Plafond et plancher technique

Rez-de-chaussée

Sous-sol

T4 | T4

T1 atelier | T1 | T3 collocation

T2 | T2 | Bureau + T3

T3 | T5

Lieu : Montreuil (93)
Surface : 1 130 m² brut
Budget : 2 000 000 euros H.T.
Performance : RT 2012
Année : 2018
Mission : Concours
Maîtrise d’œuvre : Maxence Fougère
Maîtrise d’ouvrage : Le syndicat de l’architectur












