


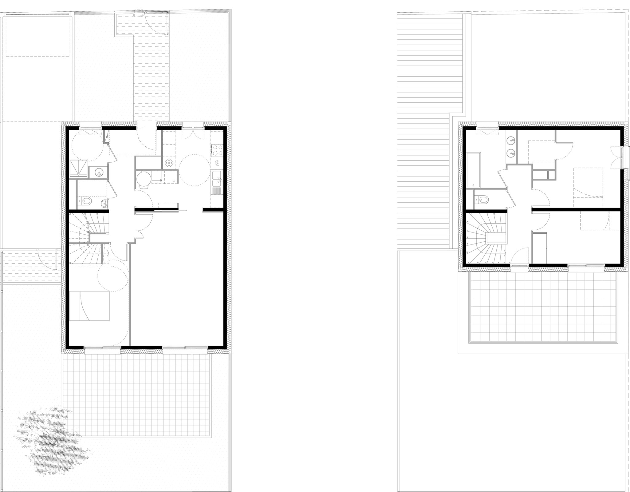
Programme : Réalisation de 10 maisons groupées
Lieu : Reims (51) quartier Wilson
Surface : 1 150 m² shab
Budget : 1 900 000 euros H.T.
Performance : BBC
Année : 2011 / 2016
Livraison : 2016
Mission : Complète
Maîtrise d’œuvre : Maxence Fougère chef de projet HF + INEX fluides + C&E ingénierie + VPEAS économistes
Maîtrise d’ouvrage : Foncière logement












